|
华为PowerCube 1000 (新建站点) V300R008C00 机柜温控子系统 ICC710-HA1H-C5华为室外机柜
产品说明
华为PowerCube 1000 (新建站点) V300R008C00 机柜温控子系统 ICC710-HA1H-C5华为室外机柜 ICC710-HA1H-C5
图 4-19 ICC710-HA1H-C5 外观
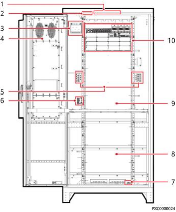
图 4-20 ICC710-HA1H-C5 内部结构(正面)
( 1 )照明灯 (2)烟雾传感器 (3)温控设备电源转接盒 (4)热交换 (5)接地排 (6)数字温湿度传感器 ( 7 )水浸传感器 (8)电池安装空间 (9)设备安装空间 ( 10)DCDU-600AN1
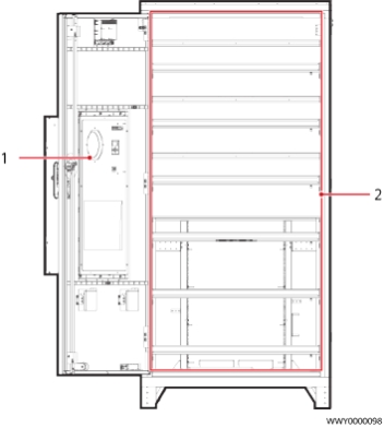
图 4-21 ICC710-HA1H-C5 内部结构(背面)
( 1 )PC1500D-1 (2)电池安装空间
表 4-8 ICC710-HA1H-C5 技术规格
|


