咨询热线:18611993847
首页 >> 公司产品 >>PDU配电单元 >> 华为MTS9000A 多功能通信系统MTS9510A-XA1701 V100R001C11 华为室外机柜
详细说明

华为MTS9000A 多功能通信系统MTS9510A-XA1701 V100R001C11 华为室外机柜

暂无价格
产品说明

华为MTS9000A  多功能通信系统MTS9510A-XA1701 V100R001C11 华为室外机柜

MTS9510A-XA1701

2-26  外观

 

 

 

2-15  机柜指标

 

项目

指标

机柜外尺寸(高×宽×深)

1725mm×750mm×750mm

机柜重量

140kg

用户空间

电池空间

4 

每层净空间(高×宽×深):330mm× 590mm×560mm

温控方式

PC300D

防护等级

IP55

 


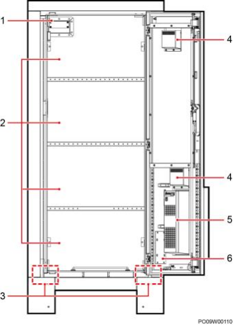
2-27  内部结构

 

1)馈线窗      2)电池安装空间         3)走线孔

4)排氢孔      5PC300D                            6)油机插座安装空间



友情链接
  • 电话直呼

    • 18611993847
    • 18611993847
    • 贾经理 :
  • 微信扫一扫

技术支持: 建站ABC | 管理登录
×
seo seo