咨询热线:18611993847
首页 >> 公司产品 >>PDU配电单元 >> 华为MTS9000A 多功能通信系统MTS9510A-AX1701 V100R001C11 华为室外机柜
详细说明

华为MTS9000A 多功能通信系统MTS9510A-AX1701 V100R001C11 华为室外机柜

暂无价格
产品说明

华为MTS9000A  多功能通信系统MTS9510A-AX1701 V100R001C11 华为室外机柜

MTS9510A-AX1701

2-22  外观

 

 

 

2-13  机柜指标

 

项目

指标

机柜外尺寸(高×宽×深)

1725mm×750mm×750mm

机柜重量

152kg

用户空间

31U(包含 1U 走线空间)

电池空间

温控方式

PC2000H

防护等级

IP55

 


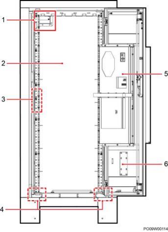
2-23  内部结构

 

1)馈线窗     2)用户设备安装空间        3)接地排

4)走线孔     5PC2000H                                  6)油机插座安装空间


友情链接
  • 电话直呼

    • 18611993847
    • 18611993847
    • 贾经理 :
  • 微信扫一扫

技术支持: 建站ABC | 管理登录
×
seo seo