|
华为MTS9000A 多功能通信系统MTS9513A-AX1701 V100R001C11 华为室外机柜
产品说明
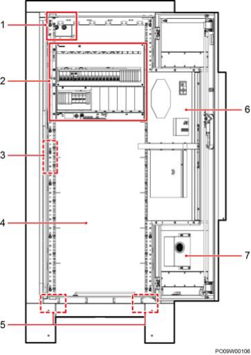
华为MTS9000A 多功能通信系统MTS9513A-AX1701 V100R001C11 华为室外机柜 MTS9513A-AX1701 图2-8 外观
表2-6 机柜指标
(1)馈线窗 (2)电源插框 ETP48300-C9A2 (3)接地排 (4)用户设备安装空间 (5)走线孔 (6)PC1500H-1
|

