|
华为UPS5000-H-1600kVA 三相三线 华为UPS电源
产品说明
三相三线华为UPS5000-H-1600kVA 三相三线 华为UPS电源 图 2-11 外观
( 1 )功率柜1 (2)功率柜2 (3)旁路柜 (4)监控显示模块 (5)电感柜
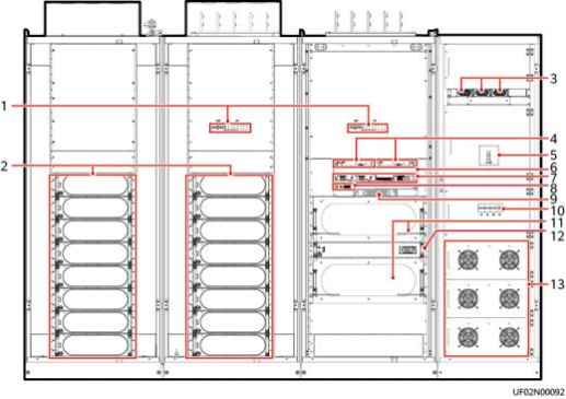
图 2-12 开门结构
( 1 )防雷器和防雷开关 (2)功率模块 (3)电感柜电源模块
(4)防雷盒 (5)电感柜总开关QF (6)假面板 ( 7 )控制模块 (8)智能检测卡 (9)旁路风扇电源模块 (10)电感柜风扇电源开关QS1 ( 11 )旁路模块 ( 12)旁路控制模块 ~ 4 ( 13)风扇 C口 说明 控制模块上方的假面板可安装选配件ECM扩展插框。 |

