咨询热线:18611993847
首页 >> 公司产品 >>PDU配电单元 >> 华为UPS5000-H-1600kVA 三相四线 华为UPS电源
详细说明

华为UPS5000-H-1600kVA 三相四线 华为UPS电源

暂无价格
产品说明

华为UPS5000-H-1600kVA 三相四线 华为UPS电源

三相四线

2-9 UPS 外观

 

1 )功率柜1                                                                              2)功率柜2

3)旁路柜                                                       4)监控显示模块


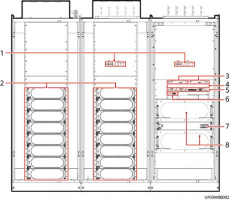
2-10 UPS 开门结构

 

1 )防雷器和防雷开关             2)功率模块                           3)防雷盒

4)假面板                             5)控制模块                          6)智能检测卡

7 )旁路控制模块                    8)旁路模块

C口 说明

控制模块上方的假面板可安装选配件ECM扩展插框。



友情链接
  • 电话直呼

    • 18611993847
    • 18611993847
    • 贾经理 :
  • 微信扫一扫

技术支持: 建站ABC | 管理登录
×
seo seo