华为TP48200A-HT19C3 通信电源 华为室外机柜
图2-1 机柜外观图

表2-1 系统配置
项目 | TP48200A-HT19C3 | TP48200A-HT19C4 |
适用环境 | C 类 |
温控单元 | l 设备舱:HXC150S 热交换器 l 电池舱:TEC 空调 |
用户空间 | 16U |
交流输入制式 | 220/380V AC 三相四线兼 容 220V AC 单相 | 110V AC 双火线 |
交流输入空开 | 1 路 63A/3P 空开 | 1 路 100A/2P 空开 |
项目 | TP48200A-HT19C3 | TP48200A-HT19C4 |
交流输出(选配) | 1 路 10A/2P 空开,1 路 10A 维护插座(RCD 保护) |
直流输出 | l 重要负载支路(BLVD):2 路 10A/1P 空开,4 路 16A/1P 空开 l 次要负载支路(LLVD):1 路 100A/1P 空开,1 路 63A/1P 空开,4 路 32A/1P 空开 l 电池支路:2 路 125A/1P 空开 |
整流模块 | 最大可配置 4 个 R4850G2 或 R4830G2 |
监控模块 | 1 个 SMU02B |
用户接口模块 | 1 个 UIM02C |
传感器 | l 必配:1 个电池温度传感器、1 个设备舱温度传感 器、1 个门磁传感器 l 选配:1 个烟雾传感器、1 个温湿度传感器、1 个水 浸传感器 |
智能电表(选配) | 1 个智能电表和 1 个电流互感器 |
蓝牙门锁(选配) | 1 个电子门锁和 1 个蓝牙控制器 |
蓄电池 | 2 层电池舱,最大可支持2 组蓄电池(12V/150Ah) |
最大输出功率 | 12kW |
L口说明
C 类环境:指海洋上环境,或者污染源附近的陆地室外和只有简单遮蔽的环境。污染源附近是指 距离盐水(如海洋、盐水湖)3.7 公里,距离冶炼厂、煤矿、热电厂等重污染源 3 公里,距离化 工、橡胶、电镀等中等污染源 2 公里,距离食
TP48200A-HT19C3
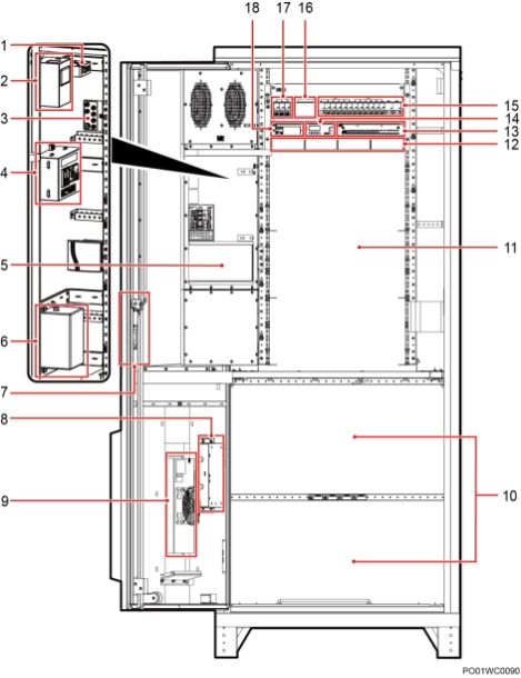
TP48200A-HT19C3 的内部结构如图 3-1所示。
图3-1 TP48200A-HT19C3 内部结构
(1)电流互感器(选配) (2)智能电表(选配) (3)机柜接地排
(4)维护插座(选配) (5)HXC150S 热交换器 (6)蓝牙控制器(选配)
(7)电子门锁(选配) (8)TCUA 控制盒 (9)TEC 模块
(10)电池安装空间 (11)用户设备安装空间 (12)整流模块安装空间
(13)用户接口模块 (14)监控模块 (15)直流配电单元
(16)交流防雷器 (17)交流输入空开 (18)电池强制上电开关