|
华为PowerCube 1000 先进混电 V300R007C30机柜温控子系统 基本柜 ICC350-A7-C1华为室外机柜
产品说明
华为PowerCube 1000 先进混电 V300R007C30机柜温控子系统 基本柜 ICC350-A7-C1华为室外机柜 基本柜 ICC350-A7-C1 外观 图 3-16 ICC350-A7-C1 外观
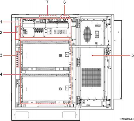
内部结构 图 3-17 ICC350-A7-C1 内部结构
( 1 )直流配电单元 (2)交流输入空开 (3)机柜接地排 DCDU-150AN1 (4)锂电池ESM-48100A3 (5)空调PC1000D-1 (6)烟雾传感器 ( 7 )照明灯
技术指标 表 3-14 ICC350-A7-C1 的技术指标
|

