|
华为UPS5000-S-800kVA 华为UPS电源机柜
产品说明
华为UPS5000-S-800kVA 华为UPS电源机柜 图 2-11 UPS 外观(800kVA)
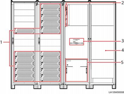
( 1 )功率柜1 (2)功率柜2 (3)地脚挡板 (4)监控显示模块 (5)旁路柜2 (6)旁路柜1 图 2-18 产品结构(800kVA 标配版)
( 1 )功率模块 (2)控制模块 (3)维修旁路开关 (4)配电模块盖板 (5)旁路模块
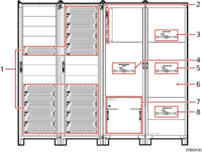
图 2-19 产品结构(800kVA 满配版)
( 1 )功率模块 (2)控制模块 (3)主路输入开关 (4)维修旁路开关 (5)输出开关 (6)配电模块盖板 ( 7 )旁路模块 (8)旁路输入开关 |


