咨询热线:18611993847
首页 >> 公司产品 >>PDU配电单元 >> 华为UPS5000-S-600kVA 华为UPS电源机柜
详细说明

华为UPS5000-S-600kVA 华为UPS电源机柜

暂无价格
产品说明

华为UPS5000-S-600kVA 华为UPS电源机柜

2-10 UPS 外观(600kVA

 

1 )功率柜                 2)地脚挡板              3)监控显示模块        4)旁路柜


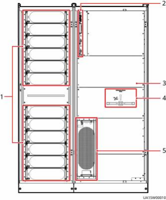
2-16 产品结构(600kVA 标配版)

 

1 )功率模块                          2)控制模块                           3)配电模块盖板

4)维修旁路开关                    5)旁路模块


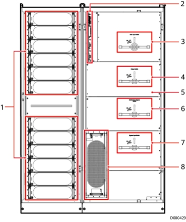
2-17 产品结构(600kVA 满配版)

 

1 )功率模块                          2)控制模块                           3)主路输入开关

4)输出开关                          5)配电模块盖板                   6)维修旁路开关

7 )旁路输入开关                    8)旁路模块



友情链接
  • 电话直呼

    • 18611993847
    • 18611993847
    • 贾经理 :
  • 微信扫一扫

技术支持: 建站ABC | 管理登录
×
seo seo