|
华为UPS5000-H-1200kVA 三相三线 华为UPS电源机柜
产品说明
华为UPS5000-H-1200kVA 三相三线 华为UPS电源机柜 三相三线 图 2-11 外观
( 1 )功率柜 (2)旁路柜 (3)监控显示模块 (4)电感柜
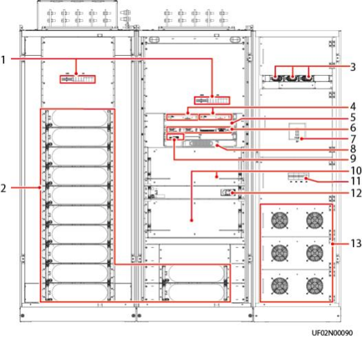
图 2-12 内部结构
( 1 )防雷器和防雷开关 (2)功率模块 (3)电感柜电源模块安装位置 (4)防雷盒 (5)假面板 (6)控制模块 ( 7 )电感柜总开关QF (8)旁路风扇电源模块 (9)智能检测卡 ( 10)旁路模块 ( 11 )电感柜风扇电源开关QS1 ( 12)旁路控制模块 ~ 4 ( 13)风扇
C口 说明 控制模块上方的假面板可安装选配件ECM扩展插框。 |

