|
华为UPS5000-H-800kVA (三相三线) 华为UPS电源机柜
产品说明
华为UPS5000-H-800kVA (三相三线) 华为UPS电源机柜 800K(三相三线) C口 说明 电感柜和UPS柜分开发货。
图 2-11 外观
( 1 )UPS功率柜 (2)UPS旁路柜 (3)监控显示模块 (4)电感柜
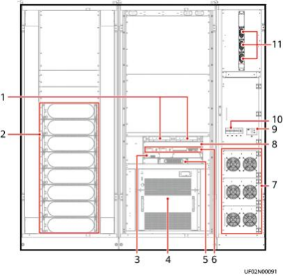
图 2-12 内部结构
( 1 )防雷盒(选配件) (2)功率模块 (3)智能检测卡(选配件) (4)旁路模块 (5)旁路风扇电源模块 (6)控制模块 ( 7 )风扇 (8)假面板 (9)电感柜总开关QF (10)电感柜风扇电源开关QS1 ( 11 )电感柜电源模块安装位置 ~ 4
C口 说明 控制模块上方的假面板可安装选配件ECM扩展插框。 |

