咨询热线:18611993847
首页 >> 公司产品 >>PDU配电单元 >> 华为UPS5000-E-(30kVA-120kVA)-FM 华为UPS电源机柜
详细说明

华为UPS5000-E-(30kVA-120kVA)-FM 华为UPS电源机柜

暂无价格
产品说明

华为UPS5000-E-(30kVA-120kVA)-FM  华为UPS电源机柜

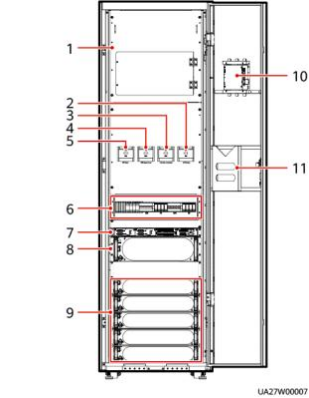
2-8 正视图

 

1 )盖板                    2)输出开关               3)维修旁路开关       4)旁路输入开关

5)主路输入开关       6)防雷模块(可选  7 )控制模块              8)旁路模块

9)功率模块               10)监控显示模块       11 )资料夹



友情链接
  • 电话直呼

    • 18611993847
    • 18611993847
    • 贾经理 :
  • 微信扫一扫

技术支持: 建站ABC | 管理登录
×
seo seo