|
华为UPS5000-A-200kVA机柜 华为UPS电源
产品说明
华为UPS5000-A-200kVA机柜 华为UPS电源
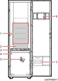
( 1 )监控显示单元 (2)机框 图 2-13 UPS5000-A-200K-ST 产品结构
( 1 )功率单元 (2)旁路单元 (3)控制单元 (4)配电插框盖板 (5)维修旁路开关 (6)监控显示单元
( 7 )资料夹 - -
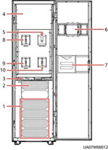
图 2-14 UPS5000-A-200K-FT 产品结构
( 1 )功率单元 (2)旁路单元 (3)控制单元 (4)配电插框盖板 (5)维修旁路开关 (6)监控显示单元 ( 7 )资料夹 (8)旁路输入开关 (9)主路输入开关 ( 10)输出开关 - -
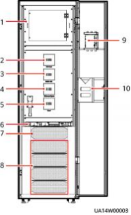
图 2-15 UPS5000-A-200K-FT(隔离防护)产品结构
( 1 )盖板 (2)主路输入开关 (3)旁路输入开关 (4)维修旁路开关
(5)输出开关 (6)控制单元 ( 7 )旁路单元 (8)功率单元 (9)监控显示单元 ( 10)资料夹 - -
|



