咨询热线:18611993847
首页 >> 公司产品 >>PDU配电单元 >> 华为UPS5000-A-500kVA(60kVA, PF=0.9)华为UPS电源
详细说明

华为UPS5000-A-500kVA(60kVA, PF=0.9)华为UPS电源

暂无价格
产品说明

华为UPS5000-A-500kVA(60kVA, PF=0.9)华为UPS电源

8 UPS 外观(  500kVA

 

1 )功率柜                 2)地脚挡板              3)监控显示单元        4)旁路柜

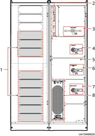
2-11 产品结构(500kVA

 

1 )功率单元                          2)控制单元                           3)主路输入开关

4)输出开关                          5)配电单元盖板                   6)维修旁路开关

7 )旁路输入开关                    8)旁路单元



友情链接
  • 电话直呼

    • 18611993847
    • 18611993847
    • 贾经理 :
  • 微信扫一扫

技术支持: 建站ABC | 管理登录
×
seo seo