|
华为UPS5000-A-600K 华为UPS电源
产品说明
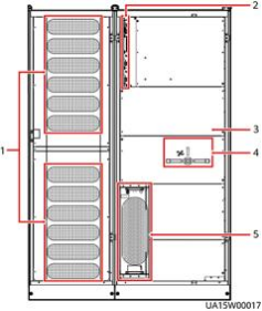
华为UPS5000-A-600K 华为UPS电源 图 2-24 UPS5000-A-600K-F600-SC 产品结构
( 1 )功率单元 (2)控制单元 (3)配电单元盖板 (4)维修旁路开关 (5)旁路单元 -
图 2-25 UPS5000-A-600K-F600-FC 产品结构
( 1 )功率单元 (2)控制单元 (3)主路输入开关 (4)输出开关 (5)配电单元盖板 (6)维修旁路开关 ( 7 )旁路输入开关 (8)旁路单元 - UPS 外观(600K)
( 1 )功率柜 (2)监控显示单元 (3)旁路柜 |


