华为TP24600B-N16B1 通信电源华为电源机柜
概述
TP24600B-N16B1 是室内通信电源系统,将交流电转换为稳定的直流电,主要为+24V 系列的通信设备进行供电。TP24600B-N16B1 最大输出电流是 600A,机柜外观如下图 所示。
图2-1 机柜外观

2.2 系统特点 l | 电压范围宽至 85VAC~300VAC |
l | 完善的电池管理功能 |
l | 完善的交、直流防雷设计 |
l | 提供一路 RS485/RS232 接口 |
l | 支持华为网管协议和电总协议,可与华为 NetEco 网管、M2000 网管、动环网管或 第三方网管通信,组网灵活,可实现远程管理,无人值守 |
l | 支持 LCD 界面中英文显示、按键操作 |
l | 支持整流模块热插拔 |
l | 整流模块功率因数值达 0.99 |
2.3 系统配置
表2-1 系统配置
项目 | TP24600B-N16B1 |
交流输入制式 | 220/380V AC 三相四线 |
交流配电 | l 交流输入:100A/3P×1 l 交流输出:32A/3P×1 ,16A/1P×1 |
直流配电 | l 重要负载下电支路:63A/1P×2 ,32A/1P×2 ,10A/1P×2 l 次要负载下电支路:100A/1P×16,预留 2 路 100A 空开 l 电池支路:2×500A |
整流模块 | 最大可支持 10 个 R24/4850N1 |
最大输出电流 | 600A(最大负载电流 400A) |
监控单元 | SMU06D |
交流防雷 | 标称雷击放电电流 20kA ,最大雷击放电电流 40kA ,8/20us |
直流防雷 | 差摸 10kA,共模 20kA ,8/20us |
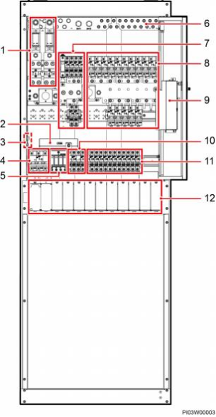
图3-1 内部结构
(1)电池熔丝 (2)N 接线排 (3)机柜接地排
(4)交流输入空开 (5)交流防雷器 (6)RTN-母排
(7)重要负载下电支路空开 (8)次要负载下电支路空开 (9)监控单元 SMU06D
(10)交流输出空开 (11)整流模块空开 (12)整流模块安装空间