|
华为MTS9300A 通信电源 V100R001C00 华为电源机柜
产品说明
华为MTS9300A 通信电源 V100R001C00 华为电源机柜 多功能通信系统MTS( multiple telecommunication system)为无线通信站点提供户 外物理工作环境、安全系统和监控组网的整体解决方案,集成了户外机柜、温控设 备、通信电源、监控、网管系统、交直流配电、防雷等功能,并为用户预留足够的安 装空间。MTS是一系列高效、智能、一体化站点解决方案。 产品特点如下: ● 高效站点 – 电池休眠 – 高效高密整流模块 ● 智能站点 – 通过远程网管管理站点 ● BoostLi储能模块 – 状态监测 – 告警管理 – 异常保护 – 信息上报 – 并联使用 – 均衡功能 – 电子标签 – 防盗功能 – 强制下电功能 – 维护模式 – 激活功能 2.2 机柜介绍
2.2.1 MTS9302A-HD16A1
图 2-1 外观
表 2-1 机柜指标
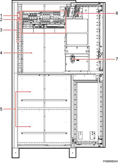
图 2-2 MTS9302A-HD16A1 内部结构
( 1 )门磁传感器 (2)电源插框 (3)机柜接地排 (4)用户设备安装空间 (5)电池安装空间 (6)内循环风扇 ( 7 )外循环风扇 |

