咨询热线:18611993847
首页 >> 公司产品 >>PDU配电单元 >> 华为MTS9302A-HX10A2通信电源 华为电源机柜
详细说明

华为MTS9302A-HX10A2通信电源 华为电源机柜

暂无价格
产品说明

华为MTS9302A-HX10A2通信电源 华为电源机柜

 MTS9302A-HX10A2

 

2-14 外观

 

 

2-8 机柜指标

 

项目

指标

机柜外尺寸(高××深)

1000mm×650mm×650mm(包含底 座)

机柜重量

<80kg(不含整流模块)

用户空间

11U

温控方式

热交换

防护等级

IP55

 


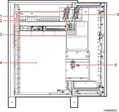
2-15 内部结构

 

1 )门磁传感器                       2)电源插框                           3)机柜接地排

4)用户设备安装空间             5)内循环风扇                       6)外循环风扇



友情链接
  • 电话直呼

    • 18611993847
    • 18611993847
    • 贾经理 :
  • 微信扫一扫

技术支持: 建站ABC | 管理登录
×
seo seo