咨询热线:18611993847
首页 >> 公司产品 >>PDU配电单元 >> 华为多功能通信系统MTS9302A-DX16A1华为机柜 华为室外机柜
详细说明

华为多功能通信系统MTS9302A-DX16A1华为机柜 华为室外机柜

暂无价格
产品说明

华为多功能通信系统MTS9302A-DX16A1华为机柜 华为室外机柜

MTS9302A-DX16A1

 

2-7 外观

 

 

2-4 机柜指标

 

项目

指标

机柜外尺寸(高××深)

1600mm×650mm×650mm(包含底 座,不含机柜外凸部分)

机柜重量

<100kg(不含整流模块和电池)

用户空间

9U

温控方式

直通风

防护等级

IP55

 


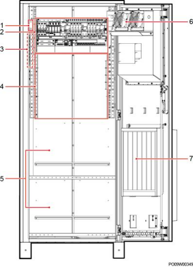
2-8 内部结构

 

1 )门磁传感器                       2)电源插框                           3)机柜接地排

4)用户设备安装空间             5)电池安装空间                    6)直通风风扇

7 )防尘网



友情链接
  • 电话直呼

    • 18611993847
    • 18611993847
    • 贾经理 :
  • 微信扫一扫

技术支持: 建站ABC | 管理登录
×
seo seo