咨询热线:18611993847
首页 >> 公司产品 >>PDU配电单元 >> 华为TP482000B-N20B2组合柜华为机柜 华为室内机柜
详细说明

华为TP482000B-N20B2组合柜华为机柜 华为室内机柜

暂无价格
产品说明

华为TP482000B-N20B2组合柜华为机柜 华为室内机柜

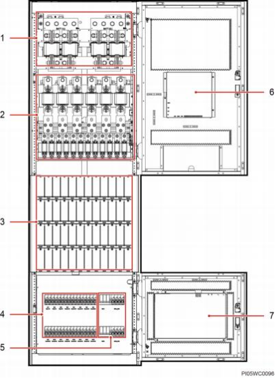
TP482000B-N20B2 组合柜的配置如 4-2 4-2所示,负载支路可根据需求进行柔 性配置。


4-2  TP482000B-N20B2 的配置

 

 

 

4-2  TP482000B-N20B2 的配置

 

序号

名称

规格

备注

1

电池熔丝

单层:(NT4×2×2

典型配置

2

负载熔丝

l 单层:NT3×6

l 单层:NT00×12

3

整流模块安装空间

50A 模块×48PCS

4

整流模块空开

双层:63A/2P×16

5

交流防雷器及防雷器 空开

l 防雷器:20kA/40kA×2 

 


 

序号

名称

规格

备注



l 防雷空开:32A/4P×2 


6

监控单元 SMU05A

1 

7

配电检测单元

1 


友情链接
  • 电话直呼

    • 18611993847
    • 18611993847
    • 贾经理 :
  • 微信扫一扫

技术支持: 建站ABC | 管理登录
×
seo seo