咨询热线:18611993847
首页 >> 公司产品 >>PDU配电单元 >> 华为 电源模块 M48500N1 华为模块
详细说明

华为 电源模块 M48500N1 华为模块

暂无价格
产品说明

华为 电源模块 M48500N1 华为模块

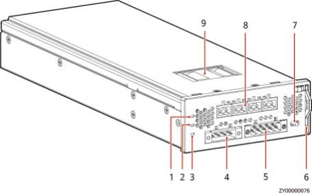
3-9 外观

 

1 )电源指示灯                       2)告警指示灯                        3)故障指示灯

4)2路12V DC输出                5)2路24V DC输出                6)把手

7 )面板ON/OFF开关(允许/  8)4路24V AC输出                 (9)风扇 关闭模块输出)

 

指示灯

3-11 指示灯说明

 

名称

颜色

状态

说明

电源指示 

绿色

常灭

  电源模块故障

  无直流输入

常亮

有直流输入,正常工作

慢闪(0.5Hz)

有直流输入,且模块处于通讯查询状态

快闪(4Hz)

有直流输入,且电源模块处于软件加载状态

告警指示 

黄色

常亮

  环境过温告警

  过温保护

  低温保护

  后台命令12V DC/24V DC/24V AC关机

  休眠关机(休眠关机时电源模块只亮保护 指示灯,电源模块不上报告警)

  直流输入过欠压告警

●   12V DC/24V DC/24V AC输出过流、短 路、过功率

常灭

正常

 


 

名称

颜色

状态

说明



慢闪(0.5Hz)

模块与外部通讯中断

故障指示 

红色

常灭

正常

常亮

  内部通讯失败

  风扇故障

  输出过压关机

  内部过温关机

  电源模块内部原因引起的无输出、紧急关 

  电源模块12V DC/24V DC/24V AC输出欠 压告警

  电源模块面板开关处于OFF状态

 

技术指标

3-12 技术指标

项目

技术指标

输入电压范围

40V DC~60V DC

最大输入电流

16.3A(额定值:12.5A)

输出电压

直流输出电压范围:12V DC~13.2V DC

直流输出电压范围:24V DC~28.2V DC

交流输出电压范围:24V AC~26.4V AC(输出额定频率: 50Hz)

尺寸(高×宽×深)

40.8mm×105mm×281mm

重量

<2kg

防雷

DC输出口防雷:差模±3kA,共模±5kA


友情链接
  • 电话直呼

    • 18611993847
    • 18611993847
    • 贾经理 :
  • 微信扫一扫

技术支持: 建站ABC | 管理登录
×
seo seo