咨询热线:18611993847
首页 >> 公司产品 >>PDU配电单元 >> 华为TP48300T-N20A7 通信电源
详细说明

华为TP48300T-N20A7 通信电源

暂无价格
产品说明

华为TP48300T-N20A7 通信电源

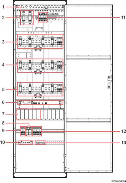
2-1  机柜外观

 


1RTN+母排          2)电池熔丝           3)用户 3 直流输出空开 和熔丝

4)用户 2 直流输出空开  5)用户 1 直流输出空开  6SMU06C2 和熔丝                   和熔丝

7)整流模块安装空间   8)交流防雷器         9)交流输入空开

10N 接线排           11)用户 4 直流输出空   12)整流模块空开 

13)机柜接地排



友情链接
  • 电话直呼

    • 18611993847
    • 18611993847
    • 贾经理 :
  • 微信扫一扫

技术支持: 建站ABC | 管理登录
×
seo seo